Am 12. Oktober 2024 wurde das Infozentrum Diebsteich in den ehemaligen Räumen der ThyssenKrupp-Gebäude eröffnet. Das Infozentrum der Hansestadt Hamburg informiert ab sofort die interessierte Öffentlichkeit über die zukünftigen Bauvorhaben rund um das Gebiet des geplanten neuen Fernbahnhofes Altona.
Zentraler Bestandteil des Infozentrums ist eine multimediale Ausstellung im ehemaligen Verwaltungsbau, die mit Videos, Grafiken und einem städtebaulichen Model anschaulich über die verschiedenen Projekte am Diebsteich Auskunft gibt.
Das Infozentrum öffnet zu folgenden Zeiten:
mittwochs von 16 bis 19 Uhr
samstags von 11 bis 14 Uhr
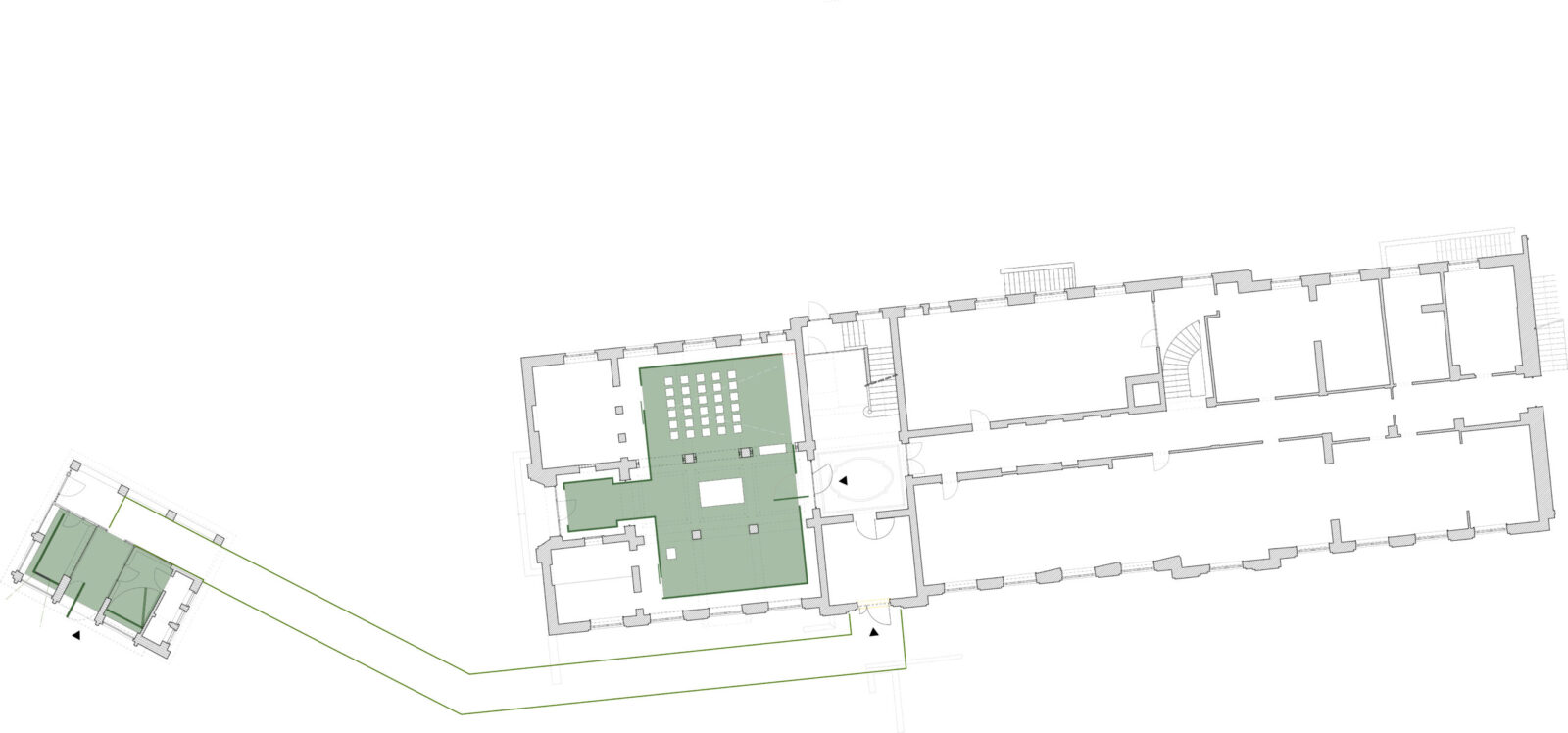
Im Rahmen eines Wettbewerbs konnten wir mit unserem Umbau- und Ausstellungskonzept überzeugen. In die Konzeption wurden das ehemalige Pförtnerhaus und ein Teil des Verwaltungsgebäudes, welches den eigentlichen Ausstellungraum beherbergt, mit eingebunden und neu gestaltet.
| Projekttyp | Realisierungswettbewerb, Sanierung Pavillon, Ausstellungkonzept |
| Planung | 2022–2023 |
| Fertigstellung | 2024 |
| Bearbeitung | LPH 2–8 der HOAI |
| Standort | Hamburg-Altona |
| Bauherr | LIG – Landesbetrieb Immobilienmanagement und Grundvermögen |
| Größe | 250 qm |
| Projekttyp | Jakob Börner |